|
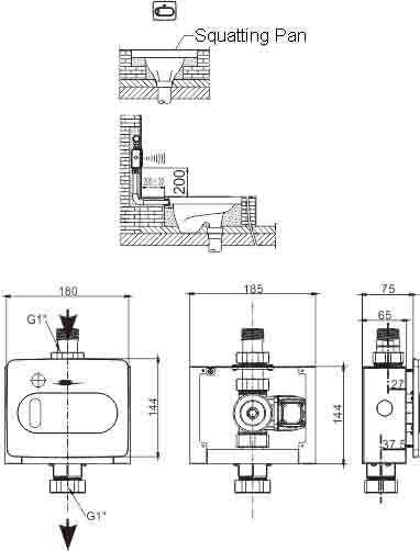
Install Instructions:

Specification;
① Power:d.c 6V/ a.c.220v
② Power consumptionin static: ≤0.5mW(dc), ≤0.6W(AC)
③ Ambient temperature:1 — 55℃
④ Suitable water pressure:0.1MPa - 0.6MPa(Best water pressure is between 0.2-0.4Mpa)
⑤ Detection zone:67cm(±15%)(To Standard White Board)
⑥ Dia.of inlet/outlet pipe:DN25(G1"),Dia of outlet Pipe: De32
⑦ Dimensions: Panel:180X146mm Embedded Case:185X144X65mm
⑧Max. Transient Flow/set: ≥1.2L/s
⑨Standard: CJ/T194-2004
Features & Functions;
Clean & Hygienic :
Self-open and close without any touch can effectively avoid cross infection of bacteria. Flush thoroughly without any odor.
Low Power Consumption :
4pcs of 1.5V AA alkaline batteries can be used for 2 years based on 300 cycles a day.
Optional Power Supply :
Both d.c 6V battery and ~220V power supply are available for your choice.
Easy to Maintain :
The product works steadily&reliable. Its built-in filter to make the maintenance easier.
Smart Deodorant :
When the urinal is not used for a long time, it will flush automatically every 24 hours to prevent the trap from drying up
and odor reversing.
Installation Characteristics :
Super-thin design, can be installed in 6cm-thickness wall.
Anti-Scratch Sensor Eye :
The window of sensor eye using a hard glass design. It can prevent the sensor eye from scratch and burn by cigarette.
Panel Characteristics :
Stainless steel panel with a one-time stamping. Even often to clean, it is still as good as new. Excellent anti-rust
performance and it can be able to bear scratch, kick and damage.
Use Instructions:
|