|
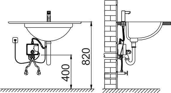
Install Instruction:

Specification:
.jpg)
Features & Functions:
GL-222K emp.-constant controller for faucets is equipped with temp.-constant
valve core, one-way valve, filter, solenoid valve and power supply device. It can be
used to replace any other faucet's controller. Its temp.-constant valve core w/ safe
button for temp.-constant protection of 38°C & 49 °C, made of nontoxic & antihydrolyzed
material, is more endurable safety and environment-friendly.
|