|
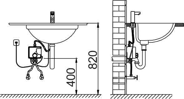
Install Instruction:

Specification:
.jpg)
Features & Functions:
GL-221K Temp.-adjusting controller for faucets is equipped with ceramic valve core,
one-way valve, filter, solenoid valve and power supply device. It can be used to
replace any other faucet's controller. Its ceramic valve core, made of nontoxic & antihydrolyzed
material, is more endurable and environment-friendly.
|